Up 三菱美唄炭砿 作成: 2023-12-24
更新: 2024-01-24


飯田炭鉱
三菱美唄 (美唄炭山)

      『美唄市史』,1970. p.448
     大正4 (1915) 年8月,飯田から炭鉱を買収した三菱合資会社は,大正 (1918) 年5月,同社の炭鉱部および鉱山部を独立して,三菱鉱業株式会社として,わが国石炭鉱業界において名実ともに三井鉱山に次ぐ第2の勢力をもつにいたった。
     同年春,三菱美唄炭砿は第4坑および第2・第3坑の着炭に成功した。
    また,これに先だって炭鉱労働者の確保のため,東北地方はいうに及ばず,遠く新潟,富山,石川方面まで積極的に募集を行なったが,なおかつ,十分でなく,大正6年には労働者の不足を朝鮮人労働者で補い,124名が入山した。
    そのほか労務者対策として,従来の飯場制度を改め,直轄寄宿所への切替え(大正8年),住宅・病院の建設(大正7年)をはじめとして,親和会の創設(大正8年). 鉱夫奨励賞金,安米制等受入れ体制に余念がなかった。
     他方,保安設備・方法の拡充,発電所の建設,また採炭法においても新技術が導入され,改良も行なわれた。
     大正7 (1918) 年には,長壁採炭法・コールカッターの導入 (ドイツから技師が来山して指導),ウルフ式安全燈の採用・複線車道と蒸気機関車による運輸手段の能率化を進めたため,出炭量 37万8,000 t と本道出炭量の10 %,全国出炭量の1.7%を占め,本道の炭鉱中夕張鉱に次ぐ第2の生産を誇るにいたった。

      『美唄市史』,1970. p.449
     [第一次世界]大戦による未曾有の好況は,インフレ傾向を帯び,諸物価は急騰した。
    このため経済界は好況であったが,労働者などの多くは,かえってその生活を圧迫された。
    三菱美唄炭砿は実質賃金の低下を防ぐ対策として,大正7年の春から安米制といわれる米の廉価脹売を行なった。
    この施策は効果があり,物価上昇に起因する暴動,争議はなかった。

1919年の地図
美唄市「行政資料室のページ」から引用



      『美唄市百年史』. p.382
     飯田のあとを受けた三菱では、
        通気の改善、
    炭塵の清掃、
    撒水の励行、
    安全灯の使用
    などの義務化と坑道の拡大にともなって、
        大型扇風機の設置、
    切羽の撒水、
    炭塵洗い、
    噴霧装置や岩粉棚の設置、
    救命具の配置や救護隊の設置
    などのほか、大正12年には
        ウルフ型安全灯の使用
    に合わせて
        エジソン式頭上灯を64個導入
    し、以後その比率を高めていった。
    ‥‥‥ 他の中小炭鉱では、通気はほとんど自然通気であり、上記のような保安整備は皆無に近かった。

      『美唄市百年史』, pp.382-384
     大正8 (1919) 年から九年にかけて最高となった炭価は、翌年から急速に下落に向かって、15 (1926) 年には半分の水準となり、低落傾向はなおも進行していった。
    貯炭量が増大するなかで、三井、三菱、住友、古河の財閥系炭鉱四社間で出炭制限を申し合わせたが効果はうすかった。
    沼貝村の中小炭鉱がいずれも苦境にあえぐなかで、高炭価にあった七年から早くも合理化と高能率化に着手していた三菱美唄炭鉱では、9 (1920) 年二つの不経済坑口を閉鎖して切羽の集中化をはかる一方で、10 (1921) 年に新坑 (竪坑) の掘削に着手し、同年3月から三回にわたって500人の人員整理を行うなど大幅に人員の削減を行った。
     生産面では塊炭採掘に重点が移り、9年 切羽に石炭搬出用コンベアが、10年 掘進用のコールカッターが入って導火発破から電気発破に変わり、13年には坑内運搬用蓄電車が30両の炭車を引いて走りだす。
    さらに切羽の穴あけには電気ドリルが導入され、払いには石炭を砕くコールピックが入る。
    これらの機械力・動力の導入によって、たがねとせっとうによる伝統的採炭技術は後退し、採炭運搬作業過程に大きな変化をもたらした。
     砕いた石炭をさらっていく各種コンベアなど、機械力をフルに活用するためにはより大きな切羽が必要である。大正12 (1923) 年12月 深さ176メートルの竪坑を完成させた三菱美唄炭鉱は、翌13 (1924) 年これの稼働を開始するとともに、巨大な炭壁に向かって30人以上もの採炭夫が一定の間隔を置いて横に並び、いっせいにコールピックを操作しながら炭壁を崩して進むという「長壁式採炭法」を本格的に導入した。
     主要坑道から炭層に向けて45メートルから75メートルの間隔で2本の坑道 (片
    磐坑道) を掘り、その後、両坑道を連結して長大な炭壁面をつくりだすのである。
    これまでの切羽に比べるとまことに巨大なものであった。
    そして大正10年を底にして、三菱美唄炭鉱の出炭量は、不況と出炭制限の申し合せとそして従業員数が横ばいのなかで,増加の一途をたどり,大正15年には80万トンを突破した。
     三菱美唄炭鉱が合理化と高能率化を進める一方で、沼貝村では錦旗炭鉱が売れ残りの石炭120トンを放置したまま閉山し、新坑開発に活路を求めた沼貝炭鉱は、10年4月奥沢にポーリング調査に着手したものの冷泉に突き当たって望みを砕かれ、12年には三菱美唄炭鉱に先駆けて長壁式採炭法を導入したものの、先にも述べたように13年には日本石油 (光珠炭鉱) に買収された。
     その光珠炭鉱は、沼員炭鉱から引き継いだ鉱区も含めてやはり長壁式採炭法をとり入れたが、採炭は依然として手掘りで、坑内運搬は鉄製戸樋(とい)や水流または手押し、馬搬などによって行い、坑外は美唄川近辺の積込場まで、総延長 5327メートルのエンドレス軌道により搬出するといった具合であったので、生産コストが高く原価の低減がむずかしい上に、炭価の低落でこれまた苦しい営業が続いていた。
    しかもここでは、昭和に入つても通気は自然通気、
    照明はウルフ灯とアセチレン灯であった。
     新美唄炭鉱の採炭方式は昭和3 (1928) 年現在でも残柱式手掘り採炭で、坑内運搬は水平坑では依然としてすら箱・手押し炭車が使われ、通気法は自然通気であった。
     昭和2 (1927) 年末の全従業員一人当たり年間出炭量は、新美唄炭鉱の172トン、光珠炭鉱の174トンにたいし、三菱美唄炭鉱では263トンと大正6 (1917) 年のちょうど2倍の水準となり、道内では出炭量で北炭夕張炭鉱に肩を並べ、能率では三井砂川炭鉱に次ぐ高水準に達していたのである。

『美唄市史』, p.694 から引用:
宮ノ下発電所 (1921年)
沼貝村の家庭で初めて電灯がともったのは三菱美唄炭鉱住宅街で、大正4 (1915) 年12月末のことである。 飯田炭鉱を買収した三菱の手によって宮ノ下発電所が建設されたことによ る (完成は翌5年)。」


『美唄市史』,1970, p.452 から引用:
竪坑工事 (1923年)



『美唄市百年史』, p.759 から引用:
選炭積込み場 (1930年)



『美唄市百年史』, p.759 から引用:
滝ノ沢発電所 (1930年, 発足は1925年)


『美唄町全圖』から
美唄市「行政資料室のページ」から引用




      三菱美唄礦業所 (1936), p.517
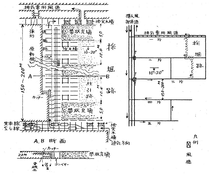
     採炭方式は各坑略ぼ共通で原則として區劃式片磐向後退長壁採炭法を實施して居る。
    彿面の長さは炭暦の厚さ、爽雑物の有無、上下磐の良否又は使用運搬機の能力如何等に依つて多少は相違するが大盤100〜200m位である。
    拂面は截炭機で透掘をし電氣ドリルで穿孔し發破採炭を行ふ。



      三菱美唄礦業所 (1936), p.517
     美唄川の下流盤ノ澤驛近くに火力發電所を有して居る。
    設備の概要は次の通りであつて昭和10年中礦所の使用電力量は12,316,186 kWh である。
      
     發電機
    容量 常時出力3,6000kW 2臺
    周波数 50サイクル
    電壓 3,300V
    製作所 獨逸シーメンスシユツケルト會社製
     タービン
    型式及臺數 ツエリーインパルス蒸氣タービン 2臺
    容量 3,600kW
    回轉數 毎分3,000回
    製作所 瑞西ヱツシヤーウイッス會社
     汽罐
    型式及臺數 ガルベ水管式 3臺
    常用汽壓 18.09kg/cm2
    煙突 高さ60m
    頂部口徑 2.7m
    構造 鐵筋ゴンクリート
     冷却塔
    型式 バルケ自然通氣型
    容量 30m3/min
    直径 八角型 25.6m
    高さ 28m
    冷却度 10C°

美唄市『写真で見る美唄の20世紀』, 2001 から引用:
滝ノ沢発電所付近 (1955年頃)


白戸仁康(監修)『目で見る 岩見沢・南空知の100年』, 郷土出版社 , 2004 から引用:
手前が盤の沢駅,正面が動力所。右手の跨線橋は,滝ノ沢坑施設に続く。
左側の煙突の高さは 62メートル。」

      『美唄市百年史』, pp.1028--1030
     外国人労働者などの退山と戦後の増産体制にともなって、新しい労働力を受け入れるためにとられた対策の一つとして、大規模な炭鉱住宅の新・改築が行われた。
    三菱美唄炭鉱には22 (1947) 年9月現在で、3553戸の炭住と15の寮・アパートがあったが,同年秋から23年にかけで、炭住800戸、四階建ての鉄筋アパート二棟などのほか白樺・親和・平和・思静・三和などと名付けた木造アパートを建て、一部に二戸建て・三部屋式に内便所のついた住宅がみられるようになった。
    さらに古い長屋の改造も大がかりに行われ、大正時代からの六・三長屋が、六・六や六・八長屋に改造されて出窓や小さな物置が付くようになった。
    ‥‥‥ 三菱美唄鉱の谷ぞいにその後も鉄筋アパートが次々と建てられていったのは、新築スペースがすでに限界にあり、古い長屋の改造によって場所がさらに不足したからでもある。
    丘陵地帯からはみ出した住宅群は美唄川を下って現在の落合町一帯に広がり、さらに、現東明町の、これも23 (1948) 年から新築住宅が軒を連ねはじめた三井新美唄鉱の炭住街を飛び越えて、その南端まで進出した。


  • 参考文献
    • 三菱美唄礦業所 (1936) :「三菱美唄礦業所の現況に就て」
        ,日本礦業會誌, No.615, 1936. pp.516-520.